AURON DUPLEX DERNIER ETAGE AVEC TERRASSE VUE PISTES
Résumé
- Mis à jour le :
- juillet 25, 2022
- 0 Chambres
- 0 Salles de bain
- Parking
- Taille
- 0
Au coeur de la station de ski d’AURON,
A proximité de la place centrale et des commerces,
Dans un immeuble au style Chalet de Montagne avec Espace bien-être SAUNA offrant des terrasses avec vue panoramique sur les pistes et parkings en sous-sol.
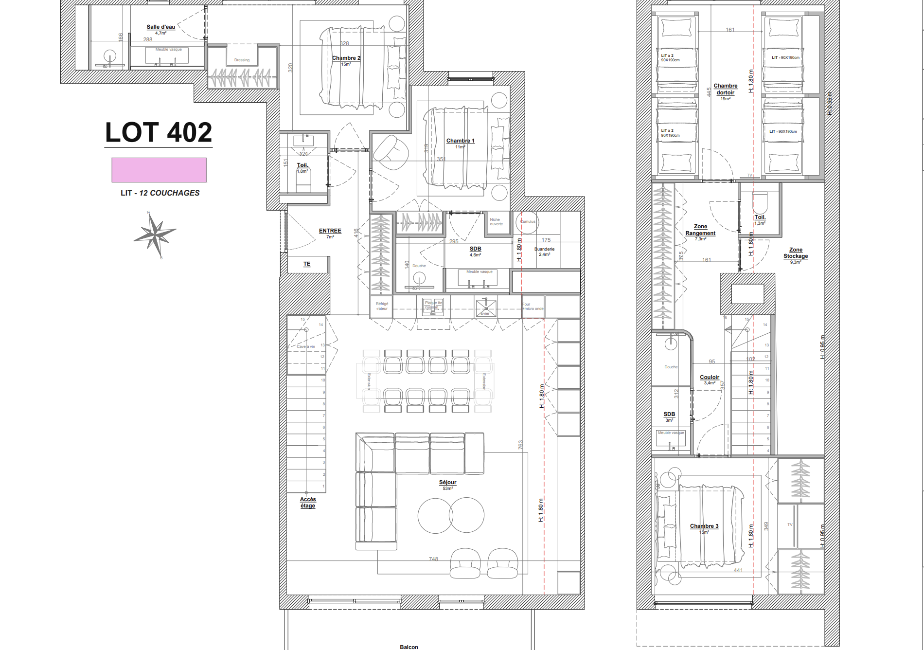
En dernier étage , appartement en duplex de 159m2 (12 couchages) avec terrasse SUD offrant une
vue pistes composé comme suit:
RDC:
– d’une entrée
– d’un séjour avec poele bioéthanol et cuisine américaine de 53m2 donnant sur une terrasse de 12m2 SUD avec vue pistes et nature
– 2 chambres donnant sun une seconde terrasse de 11m2
– 2 salles de douche
– un WC
Etage:
– 2 chambres
– 1 salle de bain
– espace rangements
1 casier à ski.
Possibilité d’acquérir 2 parkings en sus (20 K)
Immeuble économe en énergie assurant une isolation thermique et phonique performante . Disponible en 2027
Les informations sur les risques auxquels ce bien est exposé sont disponibles sur le site Géorisques
Certificat Energetique
A
B
C
D
E
F
G
H
Carte
Simulateur Express
- Principal et intérêts
- Page de propriété
- Frais de HOA















